Bought with David Campa
For more information regarding the value of a property, please contact us for a free consultation.
1778 Tierra Nueva LN Oceano, CA 93445
Want to know what your home might be worth? Contact us for a FREE valuation!

Our team is ready to help you sell your home for the highest possible price ASAP
Key Details
Sold Price $655,000
Property Type Single Family Home
Sub Type Single Family Home
Listing Status Sold
Purchase Type For Sale
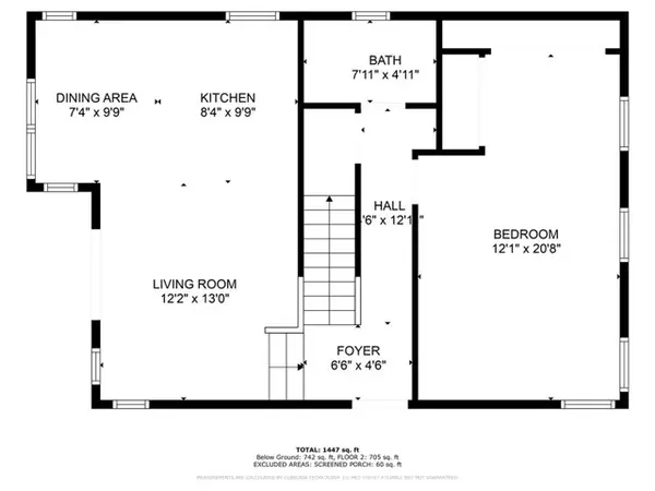
Square Footage 1,580 sqft
Price per Sqft $414
MLS Listing ID CRSC24078965
Sold Date 12/30/24
Style Contemporary
Bedrooms 4
Full Baths 2
Year Built 1998
Lot Size 1,920 Sqft
Property Sub-Type Single Family Home
Source California Regional MLS
Property Description
This four bedroom, passive solar designed home, with views of the Oceano Dunes, is one of only 5 detached units in this 27 unit development. Ideally situated on the periphery of the lush 5 acre grounds. Two large primary bedrooms, one of each level. Spacious stone patios on two sides of home with privacy fence. Association amenities include an organic garden plot, a "Common House" with a large commercial kitchen and dining room, library, and guest rooms, and a detached workshop and art/dance/yoga studio. Call for more information or to schedule a showing.
Location
State CA
County San Luis Obispo
Area Ocno - Oceano
Zoning RSF
Rooms
Dining Room Other
Kitchen Dishwasher, Oven Range - Gas, Oven Range - Built-In, Refrigerator, Oven - Gas
Interior
Heating Gas, Wall Furnace
Cooling None
Fireplaces Type Gas Burning, Primary Bedroom
Laundry Other, 38
Exterior
Parking Features Carport
Pool 31, None
Utilities Available Telephone - Not On Site
Roof Type Shingle,Composition
Building
Foundation Concrete Slab
Water Hot Water, District - Public
Architectural Style Contemporary
Others
Tax ID 062303054
Special Listing Condition Not Applicable
Read Less

© 2025 MLSListings Inc. All rights reserved.
GET MORE INFORMATION




